Imagen de contenido

TRAMPA DE DESPACHO


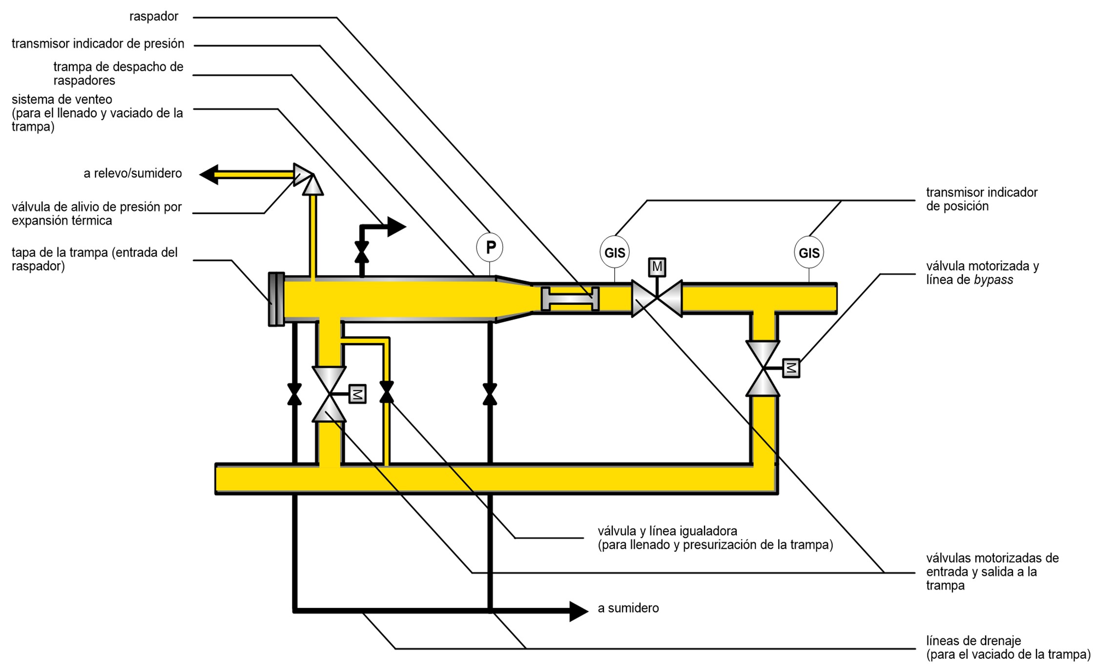
La trampa de despacho está conformada por el Barril mayor, el barril menor, línea de bypass, línea lanzadora, línea de drenaje, línea de venteo, tapa/compuerta sellada, instrumentación y accesorios de conexión (bridas, reducciones, weldolets, etc.). Cada línea tiene una válvula de compuerta o bola que permitirá o bloqueará el paso del fluido.